MAISON DE FAMILLE

Maison de famille
-
Architecture intérieure
-
Chantier fini
-
Aude Besson - Architecte d'intérieur
Maison de famille
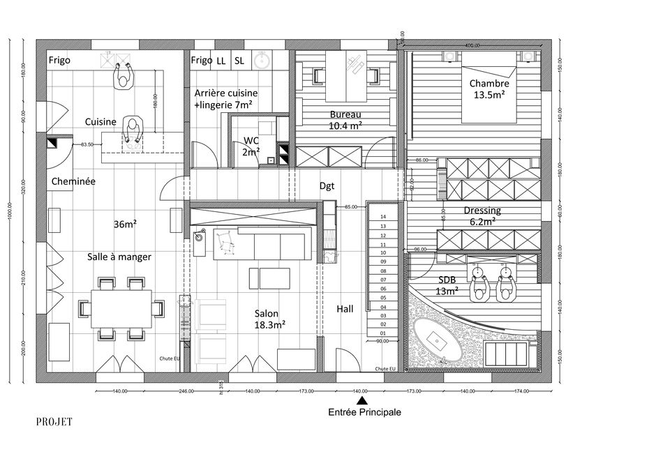
Dans cette maison datant des années 70, les codes architecturaux de cette période sont très présents : petites pièces cloisonnées, couloir, cuisine en couloir et cheminée imposante. Les nouveaux propriétaires souhaitaient apporter un vent de modernité et avoir de grands espaces.
Les espaces ont été redistribués et les volumes repensés, la cuisine est désormais ouverte sur la salle à manger et au rez-de-chaussée, l'espace privé offre une très belle suite parentale.
La lumière a été mis en valeur ce qui a permis de mettre en valeur le coin-repas de la salle à manger avec son plafond suspendu et des guirlandes de leds. Dans l'escalier des spots encastrés viennent souligner les marches.
Avant - Projet 3D - Chantier
Diaporama permettant d’apprécier l'évolution du projet.










